Immobilien Lounge Regensburg GmbH
Verschiedene Immobilienangebote in Regensburg und Umgebung

Direkt an der A3-Ausfahrt: Produktions-/Lagerhallen mit Bürotrakt

Hallen in 93092 Barbing

  • Objekt-Nr.0896
  • Kaltmiete3 690,00 €
  • Kaltmiete3 690,00 €
  • Gesamtfläche640,0 m²

Beschreibung

Beschreibung der Ausstattung

*ca. 640 m² Gesamtnutzfläche
*ca. 470 m² Hallenfläche
*ca. 170 m² Bürofläche
*verkehrsgünstige Lage
*für vielerlei Branchen interessant
*Parkplätze direkt vor dem Haus
*provisionsfrei

Lage

Im Gewerbegebiet Rosenhof, direkt an der A 3 im Ort Barbing.
Barbing ist eine Gemeinde im Oberpfälzer Landkreis Regensburg in Bayern. Die Gemeinde am östlichen Stadtrand von Regensburg ist ein attraktiver Gewerbestandort. Auch die Nähe zum Industriestandort Neutraubling (Krones, BMW, uvm.) machen diese Lage hochinteressant.

In Barbing gibt es eine hervorragende Nahversorgung . Es sind zahlreiche Handels-, Handwerks- und Dienstleistungsbetriebe angesiedelt.

Die Verkehrsinfrastruktur der Gemeinde Barbing ist gut.
* ABA Rosenhof an die Bundesautobahn 3
* Staatsstraße 2660 (Ortsumgehung)
* Staatsstraße 2145 (Walhallastraße)

Objektbeschreibung

Im Gewerbegebiet Rosenhof, direkt an der A3 Ausfahrt, bieten wir Ihnen provisionsfrei eine attraktive Hallenfläche mit Bürotrakt zur Miete an.

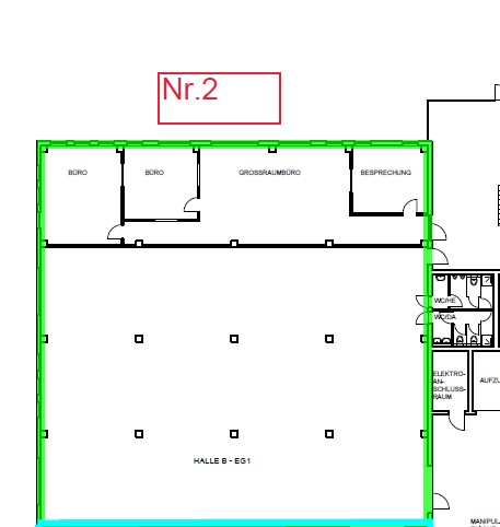
Die gut geschnittene Produktions-/Lagerhalle mit viel Tageslicht, befindet sich im Erdgeschoss und ist über eine LKW-Rampe andienbar. Sie ist für vielerlei Zwecke, z.B. Produktion, Montage, Versandlager bestens geeignet.

Ein direkt angrenzender Bürotrakt bietet sowohl ein Großraumbüro als auch drei Einzelbüros. Diese ist mit allen notwendigen Verkabelungen ausgestattet. Die Beleuchtung erfolgt über integrierte Deckenleuchten. Es ist ein neuer, strapazierfähiger Teppichboden verlegt.

Eine neuwertige Teekücke sowie eine WC-Anlage sind vorhanden.

Kfz-Stellplätze stehen direkt vor dem Objekt zur Verfügung.

Nicht nur der umliegende Branchenmix und die verkehrsgünstige Lage sprechen für Ihren neuen Firmensitz!

Sonstige Angaben

Energieausweis ist in Erstellung.

Bitte beachten Sie, dass für die im Exposé aufgeführten Angaben keine Haftung übernommen wird.

Wir bieten Ihnen gerne an, sich bei einem persönlichen Termin in unserer Immobilien Lounge
unverbindlich über dieses und weitere interessante Objekte zu informieren.
Vereinbaren Sie einfach einen Termin oder nennen Sie uns gleich einen Terminvorschlag!

Objektangaben

Kaltmiete3 690,00 €
Kaution Hinweis3 Nettomonatsmieten
Gesamtfläche640,0 m²

Ausstattung

Kontakt

*) Pflichtfelder